Resignificar el patrimonio, es recuperar la memoria.
La transformación no borra el pasado, lo escucha, lo respeta y lo convierte en refugio.
Por: Arq. Eduardo Mensegué
Arqmensegue12@gmail.com
19 de febrero de 2026
Foto: Eduardo Mensegué
Somos nuestra propia historia.
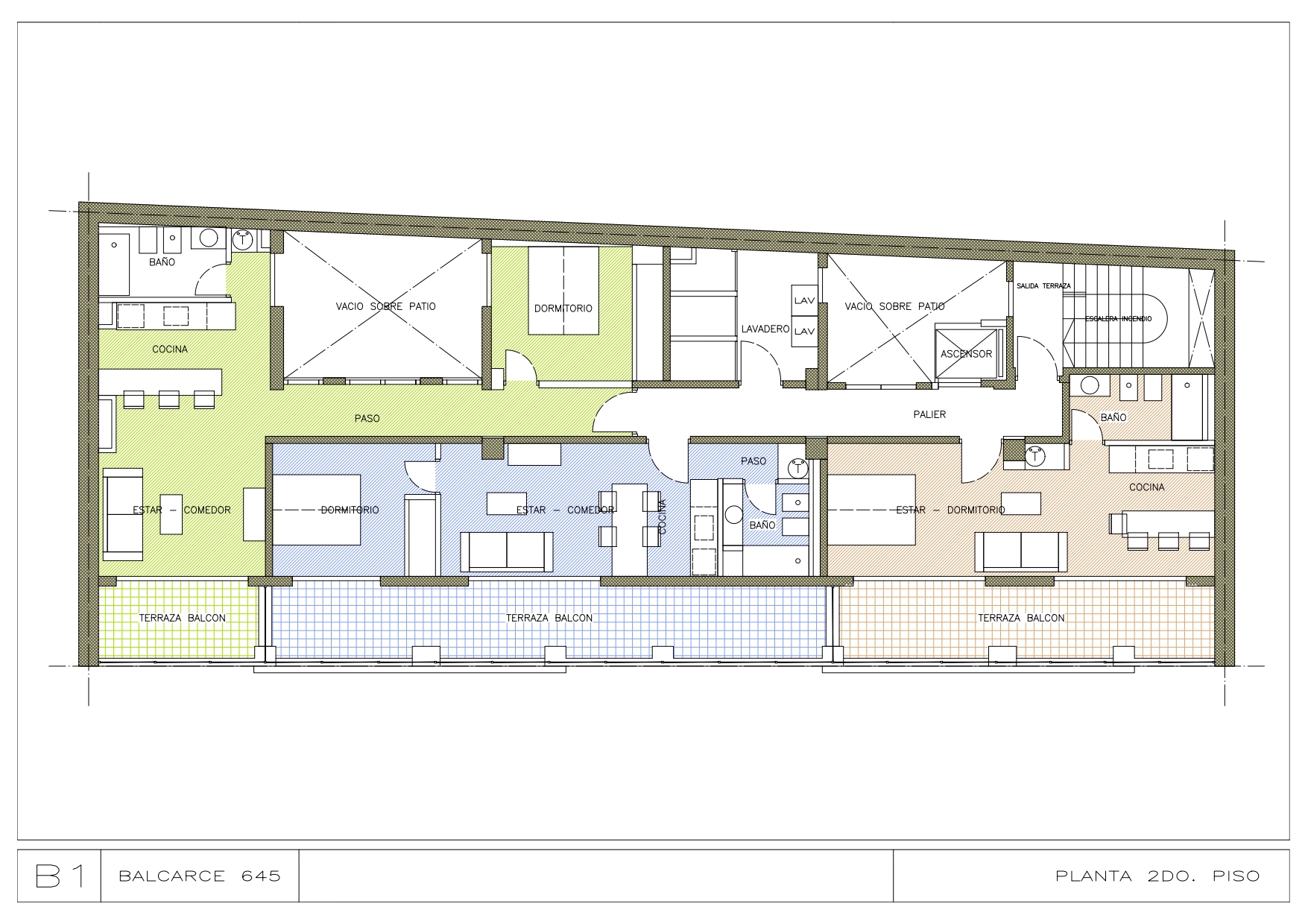
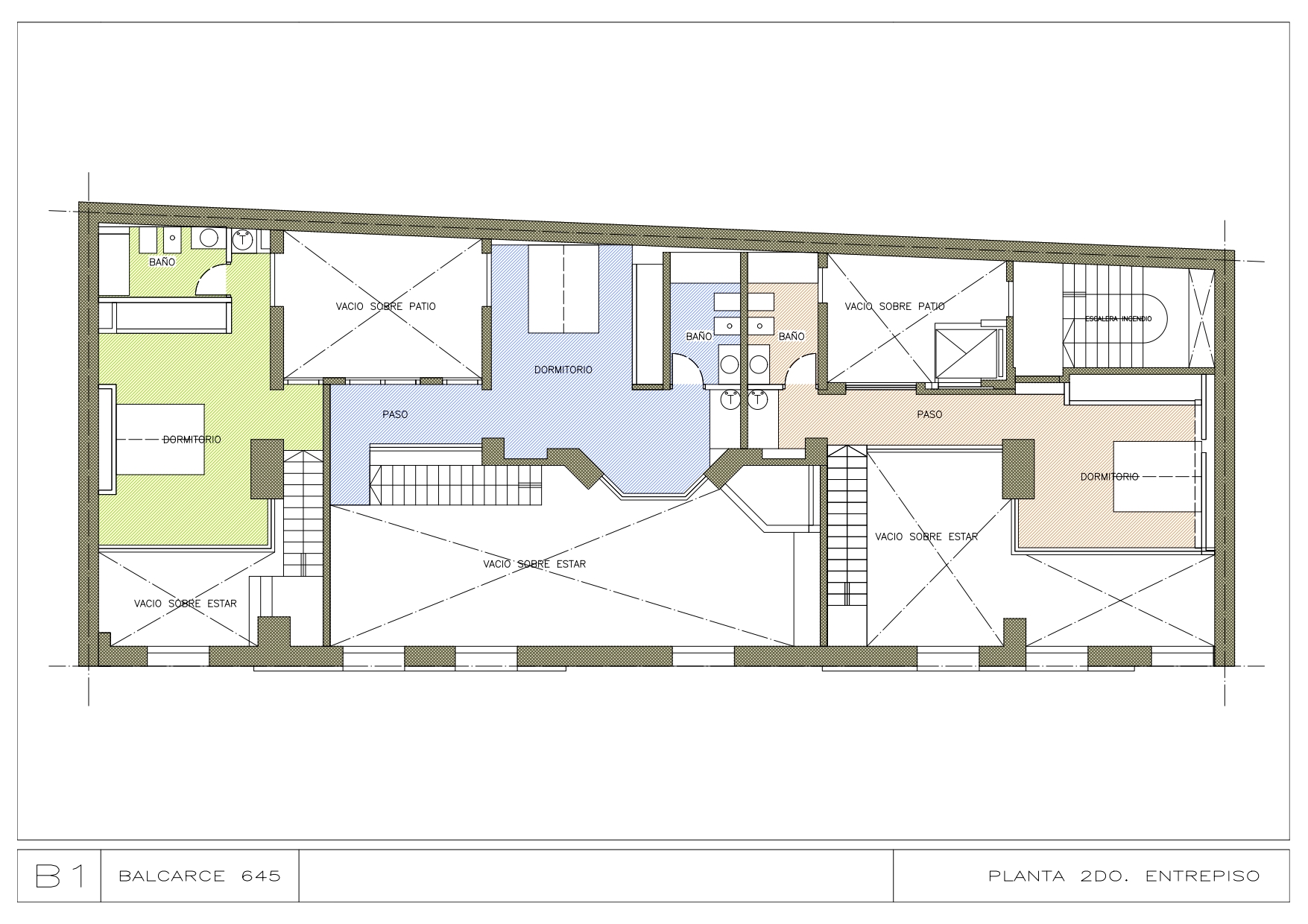
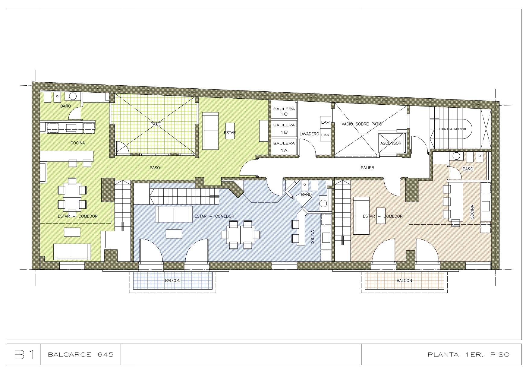
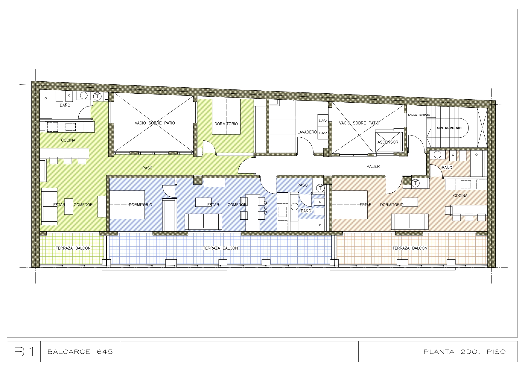
Balcarce 1.
Este edificio, guardián de la memoria urbana, deja atrás su vocación comercial para reencontrarse con el acto esencial de habitar.
Entre sus muros, se desarrollaron muchas actividades, acompañando los tiempos que corren, ahora vuelven del vértigo de la actividad comercial, a la intimidad de la vida cotidiana resignificando su sentido sin renunciar a su historia.
La transformación no borra el pasado, lo escucha, lo respeta y lo convierte en refugio, Así el patrimonio deja de ser solo recuerdo para volver a revivir como vivienda.
Corría el año 1994

La iniciativa de la puesta en valor de BALCARCE 633/47, nació en un contexto depreciado, funcionando como cuna de la intrusión, pero con la plena confianza de gente que creyó en un futuro resurgimiento de la zona, la gestión de la Dirección General de Patrimonio, encontrándose en un área destacada del Casco Histórico de la Ciudad, obedeciendo a la dinámica de crecimiento que acompañó al desarrollo comercial turístico de la zona SUR y el auge del proyecto Puerto Madero.

Allá por el 1996
Esta tendencia de inversiones se concretó en nuevos edificios de Oficinas Comerciales, o a partir del reciclado de edificios antiguos con valor patrimonial, proveyéndolos de la más moderna tecnología y equipados perfectamente a los nuevos usos informáticos, buscando el equilibrio entre la inversión y el rescate arquitectónico.

Las posibilidades de ampliación de volumen edificable, propiciaron el interés de capitales privados para tomar la iniciativa de recuperación del edificio buscando la rentabilidad de la inversión.
La propuesta adoptada consistió en integrar las funciones específicas de los nuevos usos, con la arquitectura ya consolidada del lugar.
El edificio se consideró como un contenedor de una nueva actividad de funcionamiento completamente diferente a la resolución adoptada para vivienda permanente.
Cabe destacar que el edificio refuncionalizado fue galardonado por su intervención,
-PRIMER PREMIO
Edificio Balcarce 1, Buenos Aires
Autores: Arqs. Eduardo Mensegué y Carlos Aizpeolea
CATEGORÍA B- SUBCATEGORÍA B1 (hasta 1.000 m2)
Premio Nacional a la mejor intervención en obras que involucren
el Patrimonio Edificado 2001.
Ahora en el 2024

En Argentina, la pandemia ha tenido un impacto significativo en el mercado de oficinas. La vacancia de oficinas ha aumentado un 120% desde la prepandemia, alcanzando un récord histórico del 16,3% en 2021. Esto se debe en parte a la adopción del trabajo remoto y híbrido, que ha reducido la demanda de espacios de oficinas tradicionales.
Nuevamente, la dinámica del mercado nos obliga a reconsiderar el uso del edificio, Se inician nuevos Proyectos inmobiliarios, renovando o reconstruyendo los edificios comerciales con poco uso, para convertirlos en viviendas, hoteles, locales o complejos de oficinas más modernos.
Además de uso temporal para eventos o exposiciones o actividades culturales, especialmente en el corazón turístico de Buenos Aires.
Con mucha sabiduría, el comitente decidió resignificar nuevamente el edificio y honrar su historia, dándole un nuevo propósito, para que la memoria siga viva entre sus muros, creando un nuevo espacio para generar nuevas historias.
Planos: Eduardo Mensegué
Galería
No hay comentarios aún. ¡Sé el primero en comentar!
