La Fusteria | Clara Crous Arquitectura
La Fusteria es un ejercicio de transformación que convierte un antiguo taller de carpintería en una vivienda contemporánea. El proyecto entiende la rehabilitación como un proceso de continuidad: preservar lo existente, mejorar el confort y adaptar el edificio a nuevos usos sin perder su identidad, actualizando la arquitectura heredada de forma precisa y serena.
Por: Revista Habitat
21 de abril de 2026
Clara Crous Arquitectura Portrait Montse Capdevila
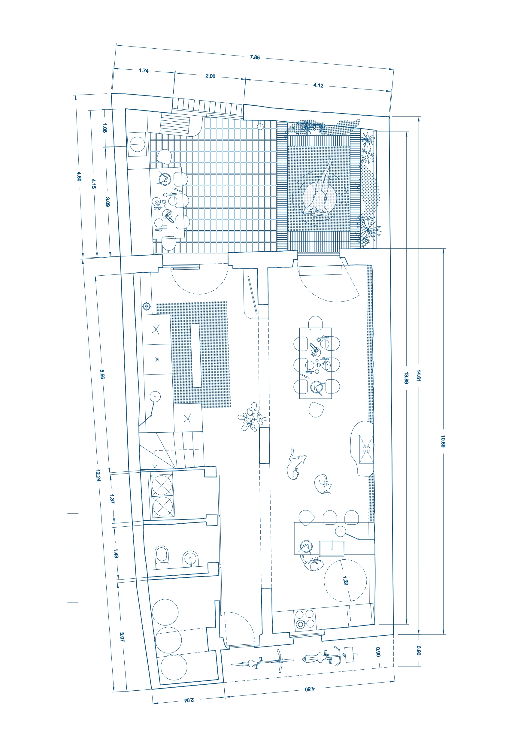
La Fusteria (carpintería en catalán) es un proyecto que transforma una antigua carpintería en una vivienda contemporánea. Localizado en un pequeño pueblo del Alt Empordà, el proyecto parte del respeto por la huella del edificio original: las dos bóvedas catalanas en planta baja conservan la memoria del taller que ocupó el lugar durante décadas y se convierten en el principal argumento espacial de la intervención.
Los propietarios, ya arraigados al pueblo, adquirieron la finca para acoger a familiares que no residen allí, especialmente durante los largos meses de invierno. Combinando este uso con el de vivienda de alquiler vacacional, las decisiones del proyecto se han centrado en garantizar confort, calidad espacial y un cuidado preciso en los detalles.
La intervención actualiza el edificio desde una mirada contemporánea, mejorando funcionalidad y eficiencia sin renunciar a su identidad. La renovación de instalaciones y carpinterías refuerza el confort térmico y la relación con el exterior, mientras que el patio delantero recupera su papel como espacio de transición entre la calle y la vivienda. Nuevas barandillas, diseñadas ad hoc, integran seguridad y coherencia estética.
Un cambio clave ha sido concentrar la vida diurna en la planta baja, trasladando la cocina junto al estar para crear un espacio abierto que dialoga con las bóvedas, liberando las plantas superiores para dormitorios y espacios privados.
El trabajo sobre los materiales ha sido esencial: se eliminaron revestimientos añadidos y se recuperaron paramentos originales con morteros y acabados de cal que permiten la transpiración de los muros y aportan luz y textura a los interiores. La restauración de pavimentos de toba manual y baldosas artesanales refuerza la conexión con los materiales tradicionales y el oficio.
La Fusteria plantea una reflexión sobre cómo habitar el patrimonio construido: una arquitectura que acompaña, actualiza y prolonga la vida de un edificio, transformando un antiguo taller en una vivienda eficiente, confortable y profundamente vinculada a su lugar.
Materiales
- mortero de cal chafado – fachada
- piedra y muros cerámicos de tocho macizo – muros antiguos
- microcemento – suelo de la planta baja
- terracota cocida – suelo planta primera y segunda
- estuco de cal – paredes
- piedra vista – paredes cabezales camas
- jabelga de cal – pared comedor
- madera de pino lacada – ventanas
- madera tricapa de abeto – puertas y cocina
- mármol natural – en encimeras de cocina
- baldosa artesana roja – baños
Productos y marcas
- lámpara Cestita en salón — Santa Cole\www.santacole.com
- lámpara Teula Raig Pendant en comedor, lámpara Mig Con en apliques paredes —Islas\www.studioislas.com
- lámpara Marseille de Le Corbusier en la cocina y salón — Nemo\www.nemolighting.com
- lámpara Luna en baños — Siete Formas\www.sieteformas.com
- lámpara Hi en el muro curvo del salón — Mayice\www.mayicestudio.com
- lámpara Aurum sobre la cama doble — Ferm Living\www.fermliving.com grifería baños — Icónico\www.iconico.es
- téxtil camas — MikMax\www.mikmax.com
- butacas y sillas Bogart — Vergés Design\www.verges.design interruptores — Fontini\www.fontini.com
- ventanas — Elke\www.elke.cat
- azulejos en baños — Alcoceram\www.alcoceram.com
Acerca del estudio / autor
Clara Crous Arquitectura es un estudio fundado en 2017 en el Alt Empordà, al norte de Cataluña.
Su trabajo se centra en el diseño de viviendas —tanto rehabilitaciones como obra nueva—, con una apuesta firme por los materiales naturales, las técnicas constructivas tradicionales y la sostenibilidad como valor esencial.
El estudio también desarrolla proyectos en el ámbito turístico —viviendas de uso vacacional, campings y restaurantes—, siempre desde una mirada sensible hacia el contexto, la identidad y la memoria del lugar.
Con un profundo vínculo con el territorio, una de sus principales prioridades es trabajar en un entorno cercano, colaborando con artesanos locales y empleando materiales de proximidad. Así, cada proyecto se convierte en una expresión de una arquitectura arraigada, responsable y duradera.
Los proyectos del estudio han sido publicados en diversos medios de ámbito local e internacional, como AD, Diseño Interior, On Diseño o La Vanguardia.
Descripción básica
Estudio: Clara Crous Arquitectura
Autor: Clara Crous Fort
E-mail: hola@claracrous.com
Website: www.claracrous.com
Redes sociales: www.instagram.com/claracrousarq
Dirección del estudio: Carrer Mar 20, 17474 Vilamacolum, España
Equipo de diseño: Jordi Collell Puig, Amanda Soler Vela
Situación del proyecto: Vilamacolum
País: España
Año del proyecto: 2023–2025
Año de terminación: 2025
Metros construidos: 232 m²
Metros útiles: 184 m²
Tamaño del terreno: 116 m²
Cliente: Ca-liu
E-mail del cliente: hola@ca-liu.com
Website del cliente: www.ca-liu.com
Créditos fotográficos: Montse Capdevila
Web: www.montsecapdevila.com
E-mail: mcapdevilalorenzo@gmail.com
Colaboradores y proveedores:
- Constructor: Manolo Martínez
- Carpintería: Deco Fusta Pey (www.decofusta.com)
- Metalistería: Moragas Salvans (www.moragasgroup.com)
- Diseño e instalación de cocina: 7VETES (www.7vetes.com)
- Microcemento: Ingremic (www.ingremic.com)
Galería
No hay comentarios aún. ¡Sé el primero en comentar!
